cookie policy
cambia impostazioni cookie
home
agenzia immobiliare
in vendita
in affitto
studio tecnico
servizi immobiliari
ingegneria civile
progetti realizzati
studio tecnico immobiliare
BUFFON - MORETTIN
studio tecnico
progetti realizzati
#gb01
Tribune Campo Sportivo, a Udine
#gb02
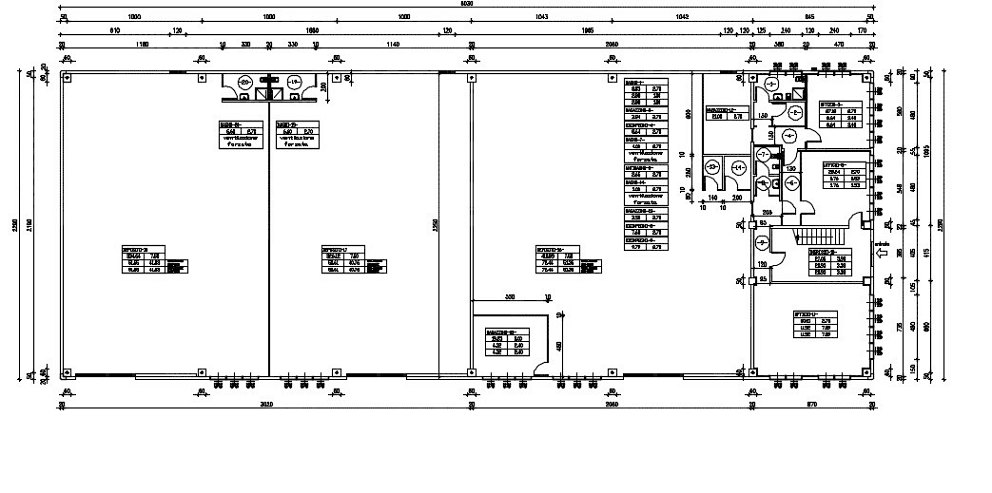
Capannone Zona Artigianale, a Latisana
#gb03
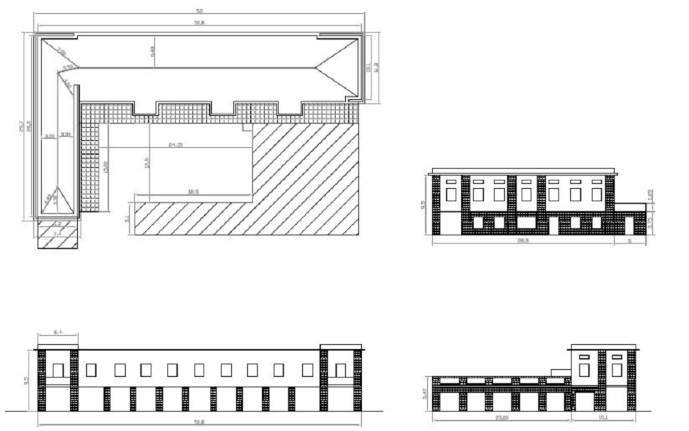
Copertura Capannone, a Cervignano del Friuli
#gb04
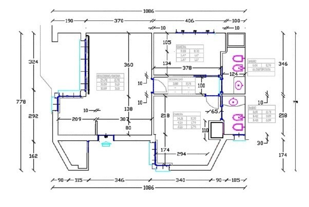
Ristrutturazione Abitazione, a Lignano Sabbiadoro
#gb05
Ristrutturazione Impianti, a Mestre
#gb06
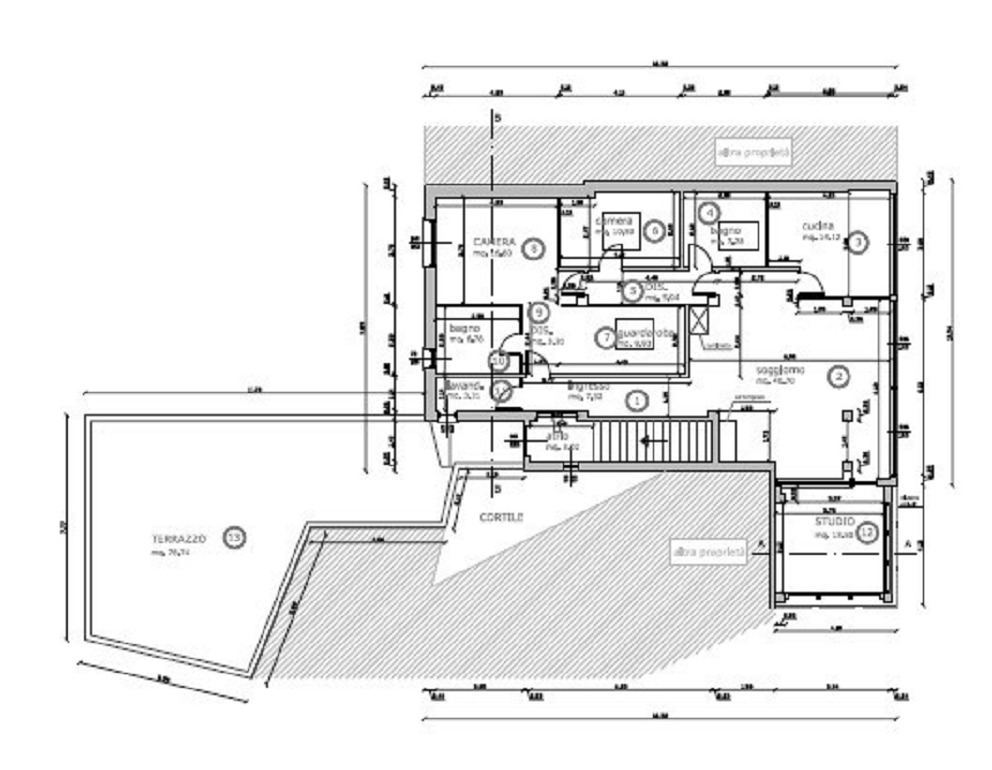
Ampliamento Immobile, a Lignano Sabbiadoro
#gb07
Manutenzione Straordinaria Condominio, a Torviscosa
#gb08
Rifacimento Immobile Vincolato, a Marano Lagunare